practice
changing skins
These are explored by using Québec’s social housing stock as a testing bed - with a focus on the retrofit of its HLMs (‘habitations à loyer modiques’ or low-rent housing.)


A sample building represented at different stages of its life. (original construction, concrete superstructure, retrofit, etc.)



Abstract
Most of the spaces we will be occupying in 2030 are those already built, and yet much of our existing housing stock was not designed to support the changing user needs of our diversely-abled population or our changing climate.
How can we work towards making our built environment more accessible and sustainable, while acknowledging the material and financial costs of construction? The solution is to develop strategies for retrofit that will preserve the ‘good bones’ or structures of our buildings while facilitating the changing of their ‘skins’ so they can better adapt to our evolving world.
This project will explore the opportunities inherent in the process of renovation and retrofit of our existing housing stock with a focus on optimizing it for current and future accessibility and sustainability needs.
Continued ︎︎︎
Typology of Study
The focus of this design experiment is a multi-unit residential building typology of concrete superstructure towers, built in the 1970s by the Service de l’habitation de Montreal during the first Canadian Mortgage and Housing Corporation (CMHC) funded non-market housing boom.

Drawing from a data set which included all HLMs in Québec, the scope of the initial building stock survey was reduced to provincially managed social housing in the region of Montreal, above 5 storeys and built before 1980.



These buildings are not only found in Québec, this multi-unit residential building typology was common accross Canada between 1960 and 1980. A Toronto based group known as the Tower Renewal Partnership has already identified the need to rehabilitate them and is actively working on initiatives to preserve and upgrade this section of our housing stock.
“A critical feature possessed by most post-war multi-unit residential buildings constructed across Canada is that the existing building enclosure is an ideal substrate for retrofit overcladding systems. [...]
Assuming a 50-year service life for skins, and a minimum 250-year service life for the armature, existing tower buildings will be re-clad at least 4 times before they are no longer fit for their intended purpose.”
Tower Renewal Guidelines: For the Comprehensive Retrofit of Multi-Unit Residential Buildings in Cold Climates
Ted Kesik and Ivan Saleff (University of Toronto)
Ted Kesik and Ivan Saleff (University of Toronto)
Pilot Building Selection
By cross referencing archival Service de l’habitation de la Ville de Montréal pamphlets with a dataset of the social housing buildings in Québec I was able to form a long list of potential pilot building candidates.













Sample of Service de l’habitaion - Ville de Montréal documents
for of the long-listed buildings, from the McGill Library.
for of the long-listed buildings, from the McGill Library.
Long List Pilot Selection continued ︎︎︎
By studying their drawings and identifying patterns in plan, I formed a shortlist of potential pilot building candidates.


Shortlist Pilot Selection Continued ︎︎︎
Selected: Habitation Rosemont





Built: Avril 1971
Occupants: Families, couples, people living alone Seniors
Floors: 6
Dwellings: 82 units
Average Disrepair: IVP – B, 9%
Recent Renovations:
- Travaux de chaufferie 2018
- Travaux de mieux isoler (2016) $300 000
(Link to OMHM Directory Page)
A New Skin Approach
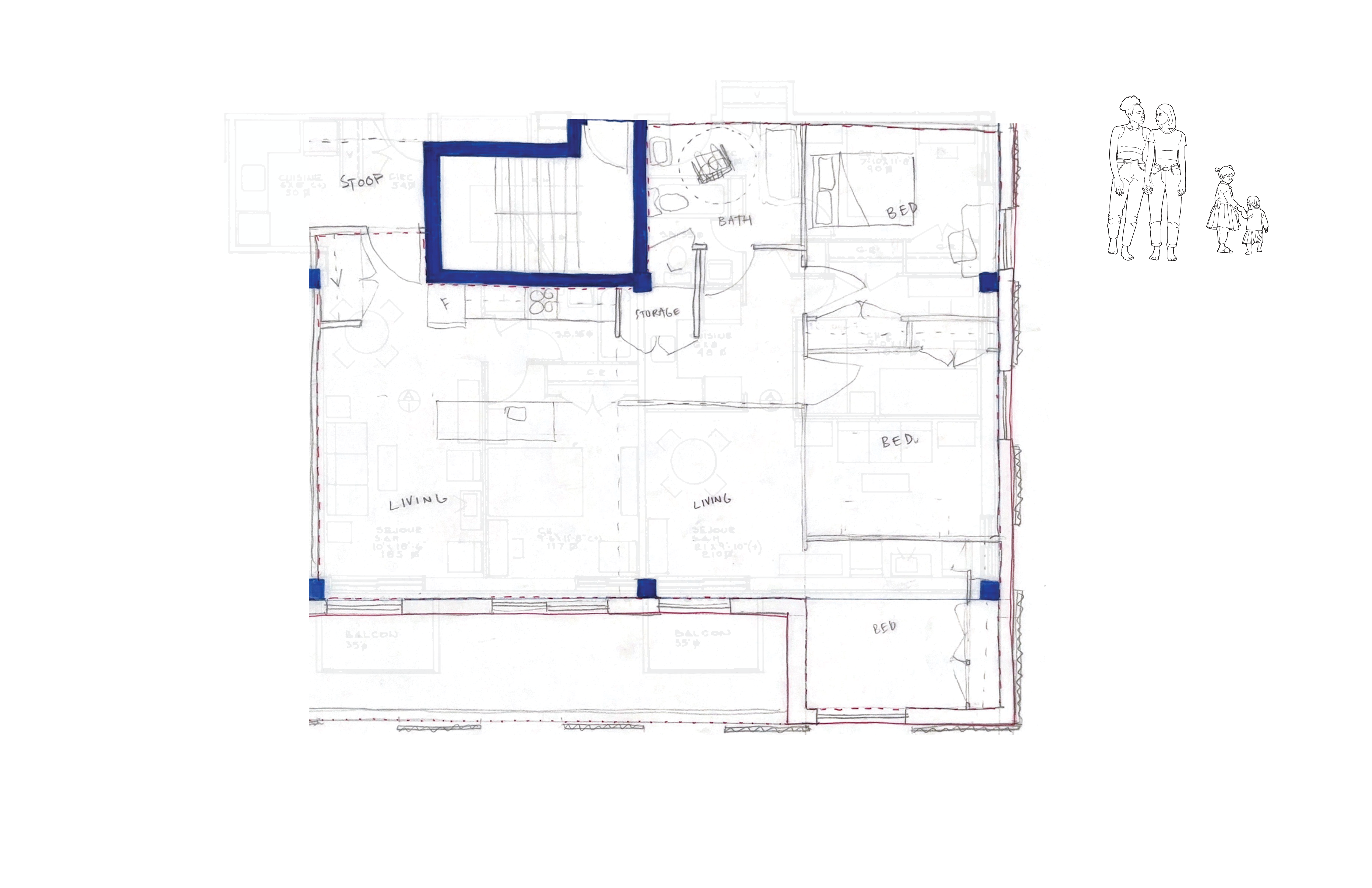
Following the Tower Renewal Group and ReCONstruct’s logic, my first experiments explored the opportunities inherent in changing the skin of the building. Could simply extending the floor plate be a simple tool used to create more accessible housing?
Habitation Rosemont’s “bones” and potential new skin boundary.




Focusing on a typical one-bedroom unit, I performed an ad-hoc access audit and tested whether extending the exisiting units could facilitate the integration of accessible and universal design principals.












It also made it clear that working within the confines of the existing unit organization and structural bays was counterproductive so, as I continued to experiment I shifted away from a preservationist mindset.
Seeking Alternative Models
Instead of working within the framework of the existing unit types, I consulted more contemporary and innovative models.

Considering the Building as a System
Zooming out from the unit scale, I chose to focus on the more holistic implications of changing a building’s skin. If the existing units were too restrictive to meet most contemporary needs, why not use the transformation of the building as an opportunity to update the way the building can house a more diverse range of inhabitants?






New Unit Types
Recognizing the existing structural bay as too narrow to house an apartment with properly upgraded clearances, storage, bedroom, bathroom and kitchen - I instead introduced ‘partial’ or ‘supported’ units in their place.
Modelled on units in long term care and retirement homes, apartments with partial kitchens but generous storage, bedrooms and bathrooms are integrated into this otherwise typical apartment building.












Reconfiguring the whole plan thus created opporunities to develop new typical and atypical unit types that could embody the space and slack necessary for the giving and receiving of care that happens in all households.
Using Architectural Slack to Facilitate Care
Creating intentional space within our standard housing stock for people with a diverse and changing range of care needs is an act of recognizing and trying to facilitate the diverse ways that people already live and care for each other in community.
As explored in the theory tab, this is built on the assumption that each housing unit does not and cannot function in isolation. Instead, we use our homes as assistive technologies, our households working in dialog with external systems and each other to meet our diverse and changing needs.
This can be understood as households supporting each other, creating access, adaptability and community through relationships between units.










A Narrative Design Proposal
The final output of this project is a series of narrative vignettes illustrating the adaptive potential of the proposed design to facilitate evolving, accessible and inclusive homes.


Continued ︎︎︎
Project progress: milestones
This topic is being investigated during the 8 month period between September 2023 and April 2024. Throughout that time, its progress will be presented and reviewed in four milestones. Here is the record of evolution of the project at each of those milestones.
OCTOBER 2023
Mid Review
Mid Review






















DECEMBER 2023
Term 1 Review
Term 1 Review


















































FEBRUARY 2024
Term 2 Midreview
Term 2 Midreview



















































APRIL 2024
Final
Final






































































Madeleine Lachance
Advisor - Michael Jemtrud, Associate Professor